Projekte
Office
Kontakt
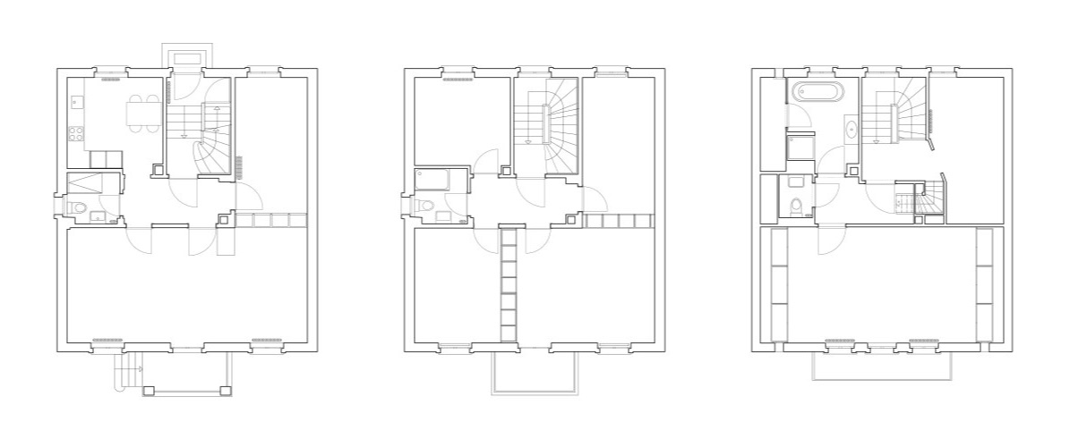
Umbau Wohnhaus Mühlefeldquartier
Umbau und Sanierung der Innenräume von einem 30-Jahr Wohnhaus im Mühlefeldquartier.
Jahr
:
2019
Bauherrschaft:
privat
Standort:
Biel/Bienne
Nutzung:
Wohnen
Suchen
Diese Website kann Cookies und externe Skripte verwenden.
Weitere Informationen
Ich stimme zu